12-17,
ARMAZÉM DO MERCADO
“CONSTRUIR NO CONSTRUIDO” (ESPESSURA DO TEMPO)
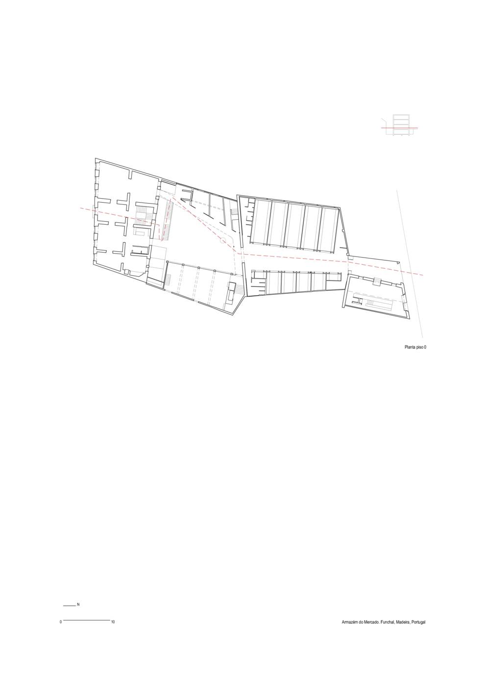
Um troço de cidade na matriz histórica do Funchal congrega um conjunto formal, com uso diferenciado ao longo da sua história. Chega aos nossos dias, exaurido da sua potencialidade programática, onde acresce um estado de degradação bastante acentuada. Constituído nas suas diferentes tipologias por uma bela casa oitocentista, responsável pela fundação deste pequeno troço de cidade, organiza o tempo romântico. Manifesta no plano marginal de frente de rua o exemplar mais significativo, que se implanta a cota mais baixa, e se viu afastada da sua génese programática ao longo do século XX. Diversos corpos adossam-se à casa com funções bastante distintas e marcam um período de forte carácter evidenciando o seu tempo industrial. O construir de uma pequena fábrica de bordados nas costas da casa e, no seu lado oposto, a construção de o cinas de automóveis estabelece forte contacto com uma frente de rua mais elevada.
ESTRUTURA DO PROJETO
A diversidade programática, e as suas fortes diferenças formais, constrói a estratégia do projeto onde procuramos uma celebração arqueológica do lugar; mais do que fazer de novo, procuramos a exaltação da totalidade da espessura do tempo encontrado, estruturando uma prerrogativa para novos tempos. Representa oportunidade única no contexto atual desta cidade que apresenta sinais devolutos bem manifestos. Junta-se a conjugação, e o valor de ser exclusivo de um proprietário, aliada à vontade de recuperar e revitalizar este quarteirão da Cidade.
ATRAVESSAMENTO DO LUGAR
O projeto convoca para um atravessamento dos diferentes tempos e espaços, duas ruas tocam-se pelo trabalho conquistado para a permeabilidade dos edifícios, dominando a topogra a da cidade. O espaço agora encontrado, amplo e aberto, composto por novos comércios, dispõe-se para novas experiências urbanas e suas culturas. Regenera-se este bocado de Cidade. “...a vida é bela, porque muda...”
Um troço de cidade na matriz histórica do Funchal congrega um conjunto formal, com uso diferenciado ao longo da sua história. Chega aos nossos dias, exaurido da sua potencialidade programática, onde acresce um estado de degradação bastante acentuada. Constituído nas suas diferentes tipologias por uma bela casa oitocentista, responsável pela fundação deste pequeno troço de cidade, organiza o tempo romântico. Manifesta no plano marginal de frente de rua o exemplar mais significativo, que se implanta a cota mais baixa, e se viu afastada da sua génese programática ao longo do século XX. Diversos corpos adossam-se à casa com funções bastante distintas e marcam um período de forte carácter evidenciando o seu tempo industrial. O construir de uma pequena fábrica de bordados nas costas da casa e, no seu lado oposto, a construção de o cinas de automóveis estabelece forte contacto com uma frente de rua mais elevada.
ESTRUTURA DO PROJETO
A diversidade programática, e as suas fortes diferenças formais, constrói a estratégia do projeto onde procuramos uma celebração arqueológica do lugar; mais do que fazer de novo, procuramos a exaltação da totalidade da espessura do tempo encontrado, estruturando uma prerrogativa para novos tempos. Representa oportunidade única no contexto atual desta cidade que apresenta sinais devolutos bem manifestos. Junta-se a conjugação, e o valor de ser exclusivo de um proprietário, aliada à vontade de recuperar e revitalizar este quarteirão da Cidade.
ATRAVESSAMENTO DO LUGAR
O projeto convoca para um atravessamento dos diferentes tempos e espaços, duas ruas tocam-se pelo trabalho conquistado para a permeabilidade dos edifícios, dominando a topogra a da cidade. O espaço agora encontrado, amplo e aberto, composto por novos comércios, dispõe-se para novas experiências urbanas e suas culturas. Regenera-se este bocado de Cidade. “...a vida é bela, porque muda...”
Autor
Paulo David
Colaboradores
Susanne Selders, João Almeida, Joel Gomes, Sofia Teles, Filipe Ferreira, Kriistina Kuosiluoma, Adriana Henriques, Iva Camber.
Especialidades
Estrutura: Miguel Vilar, Betar;
Instalações Eléctricas: Paulo Brazão, Fluxo de Luz;
Águas e Esgotos: Bruno Teixeira,Texvel;
Ventilação e Climatização: Pedro Camacho, Luvego;
Segurança: José Cardoso e José Correira, pro M&E;
Paisagismo, Sinalética, Iluminação e Mobiliário: Atelier Paulo David.
Promotor da obra
Francisco Costa & Filhos S.A.
Tipo de encomenda
Adjudicação direta
Data
2012-2014
Local
Funchal
Paulo David
Colaboradores
Susanne Selders, João Almeida, Joel Gomes, Sofia Teles, Filipe Ferreira, Kriistina Kuosiluoma, Adriana Henriques, Iva Camber.
Especialidades
Estrutura: Miguel Vilar, Betar;
Instalações Eléctricas: Paulo Brazão, Fluxo de Luz;
Águas e Esgotos: Bruno Teixeira,Texvel;
Ventilação e Climatização: Pedro Camacho, Luvego;
Segurança: José Cardoso e José Correira, pro M&E;
Paisagismo, Sinalética, Iluminação e Mobiliário: Atelier Paulo David.
Promotor da obra
Francisco Costa & Filhos S.A.
Tipo de encomenda
Adjudicação direta
Data
2012-2014
Local
Funchal






