03-05,
Casa Sacerdotal de São Martinho de Dume
Trata-se de um edifício dedicado ao acolhimento de sacerdotes idosos.
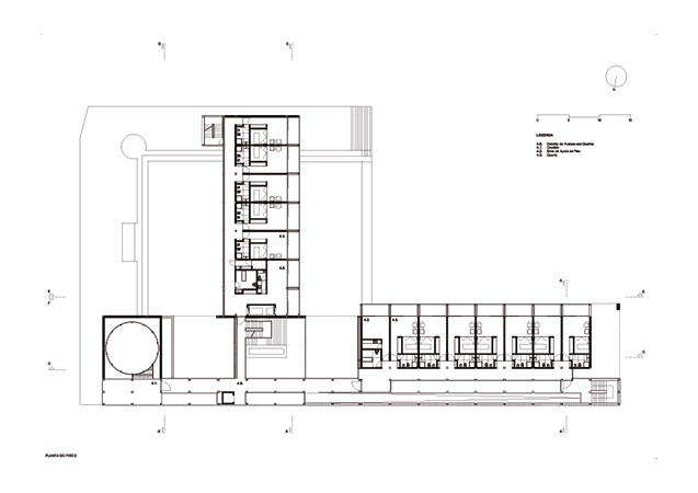
A proposta alicerça-se a partir de um conceito “forte”: um edifício em T, ao qual se adicionou bloco secundário baixo, que envolve a primeira forma, formando um pátio interior de um lado e abrindo o edifício para o jardim de outro. Possui duas faces distintas: a Norte uma fachada branca, uniforme, em tijolo de vidro, de luz; a Sul uma fachada negra, variável, em lona e chapa pretas, que permite o controlo solar, com varandas e limites recortados. Esta dualidade sente-se no interior: uma luz uniforme e constante em todos os espaços de circulação; uma luz forte e de contrastes em todos os espaços privados e públicos de dormir e estar. A sequência de espaços articula-se a partir de um ponto central, na intersecção dos braços do T, onde está o foyer. Daqui, temos a Sul e Poente um corpo de quartos, a nascente a capela. Separando o ponto central dos braços há um vazio, com grandes varandas cobertas de pé direito alto.
Estruturalmente o edifício compõe-se por uma malha metálica regular, que define todos os espaços do edifício. É interrompida em alguns locais especiais: o foyer de entrada, a capela. Urbanisticamente, a Casa de S. Martinho de Dume, o edifício do Seminário no topo nascente, a residência episcopal no topo Poente e a construção futura a edificar no lado Norte, constituem uma alameda que enquadra e dignifica cada um dos edifícios existentes e a construir. É assim criado um vazio interno simbólico onde se congregam os diversos momentos da vida sacerdotal: aprendizagem, a prática sacerdotal, e o descanso e recolhimento no fim da vida.
A proposta alicerça-se a partir de um conceito “forte”: um edifício em T, ao qual se adicionou bloco secundário baixo, que envolve a primeira forma, formando um pátio interior de um lado e abrindo o edifício para o jardim de outro. Possui duas faces distintas: a Norte uma fachada branca, uniforme, em tijolo de vidro, de luz; a Sul uma fachada negra, variável, em lona e chapa pretas, que permite o controlo solar, com varandas e limites recortados. Esta dualidade sente-se no interior: uma luz uniforme e constante em todos os espaços de circulação; uma luz forte e de contrastes em todos os espaços privados e públicos de dormir e estar. A sequência de espaços articula-se a partir de um ponto central, na intersecção dos braços do T, onde está o foyer. Daqui, temos a Sul e Poente um corpo de quartos, a nascente a capela. Separando o ponto central dos braços há um vazio, com grandes varandas cobertas de pé direito alto.
Estruturalmente o edifício compõe-se por uma malha metálica regular, que define todos os espaços do edifício. É interrompida em alguns locais especiais: o foyer de entrada, a capela. Urbanisticamente, a Casa de S. Martinho de Dume, o edifício do Seminário no topo nascente, a residência episcopal no topo Poente e a construção futura a edificar no lado Norte, constituem uma alameda que enquadra e dignifica cada um dos edifícios existentes e a construir. É assim criado um vazio interno simbólico onde se congregam os diversos momentos da vida sacerdotal: aprendizagem, a prática sacerdotal, e o descanso e recolhimento no fim da vida.
Autor(es)
André de Moura Leitão Cerejeira Fontes e António Jorge de Moura Leitão Cerejeira Fontes
Colaborador(es)
António Leitão Dias, Nuno Miguel Lima da Cruz, José Pedro da Silva Moreira Pereira Fernandes, Sónia Cristina Oliveira da Rocha Gonçalves, Nuno Alexandre da Costa Rebelo, Bruno Miguel da Silva Marques, Tiago de Moura Leitão Cerejeira Fontes
Especialidades
Estabilidade
André Lopes
Distribuição de Água
Rodrigo Machado
Drenagem de Águas Residuais
Rodrigo Machado
Electricidade, Telecomunicações, Rede de Gás, Climatização, Aquecimento Central
Carlos Couto
Construção
Domingos Carvalho, S.A.
Encomenda
I.D.A.C. (Instituto Diocesano de Apoio ao Clero)
Ano de conclusão
2005
Área geográfica
Braga
André de Moura Leitão Cerejeira Fontes e António Jorge de Moura Leitão Cerejeira Fontes
Colaborador(es)
António Leitão Dias, Nuno Miguel Lima da Cruz, José Pedro da Silva Moreira Pereira Fernandes, Sónia Cristina Oliveira da Rocha Gonçalves, Nuno Alexandre da Costa Rebelo, Bruno Miguel da Silva Marques, Tiago de Moura Leitão Cerejeira Fontes
Especialidades
Estabilidade
André Lopes
Distribuição de Água
Rodrigo Machado
Drenagem de Águas Residuais
Rodrigo Machado
Electricidade, Telecomunicações, Rede de Gás, Climatização, Aquecimento Central
Carlos Couto
Construção
Domingos Carvalho, S.A.
Encomenda
I.D.A.C. (Instituto Diocesano de Apoio ao Clero)
Ano de conclusão
2005
Área geográfica
Braga























